內容摘要:恒光電器,照亮您的生活,專業LED照明,22年專注照明行業-從科研,開發,設計,到精選優質材料制造,再到生產重量的嚴格控制,保證到用戶手中是優質精選產品-為您提供最安全、穩定的照明解決方案-室內照明燈光設計,照明轉換工程,節能環保工程提供解決照明燈光設計方案
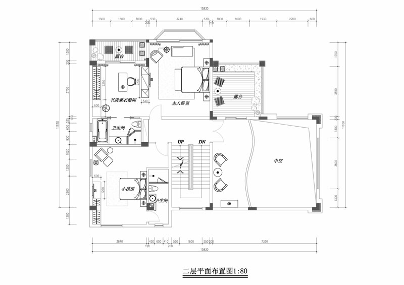
二層150平方米住宅燈光照明設計要求
- 用戶名:穿越未來
- 發布時間:2013-04-08 11:05
- 點擊:51 次
- 裝修用途:住宅裝修
燈光照明設計要求:
我是單家獨戶的住宅,占地250平方米,首層的設計已看過,效果不錯的。這是二層的平面圖,主要有一樓的中空大廳、主人房、小孩房和書房。幫我設計一下配什么燈好呢。
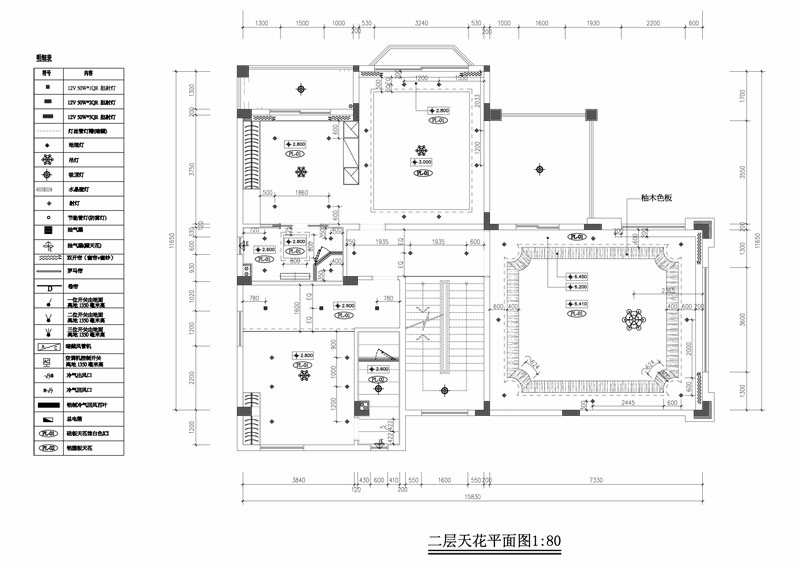
二層150平方米住宅燈光照明設計方案
- 用戶名:恒光設計師
- 裝修用途:住宅裝修
燈光照明設計說明:
1、中空大廳做一個方型的天花池,池四周用T5-LED燈管做暗槽,四邊配LED天花燈(筒燈)做補充照明,中間裝LED蠟燭球泡做的水晶吊燈。 2、樓梯和走道的天花裝COB的LED方形射燈。 3、主人房做一個造型的天花暗槽放T5-LED燈管,天花池外四周配LED天花燈(筒燈),中間裝LED蠟燭球泡做的吊燈。 4、書房裝LED筒燈做主要照明,中間裝明裝吸頂燈。 5、小孩房做一個簡單造型的天花暗槽放T5-LED燈管,四周配LED天花燈(筒燈),中間裝吸頂燈。 6、衛生間正中各裝LED吸頂廚衛燈。 7、露臺裝LED吸頂燈。










































































