二層150平方米住宅燈光照明設計解決方案
- 用戶名:穿越未來
- 發布時間:2013-04-11 15:47
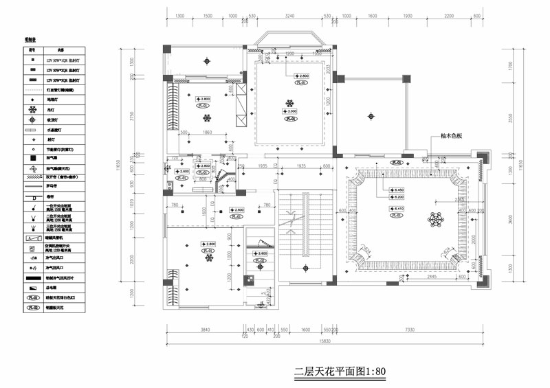
設計需求圖紙
設計需求說明我是單家獨戶的住宅,占地250平方米,首層的設計已看過,效果不錯的。這是二層的平面圖,主要有一樓的中空大廳、主人房、小孩房和書房。幫我設計一下配什么燈好呢。細節圖請看我上傳的圖片和文件有詳細的說明。 |
燈光照明設計方案回復回復時間:2013-04-23 13:11燈光照明設計布局圖
燈光照明設計方案說明1、中空大廳做一個方型的天花池,池四周用T5-LED燈管做暗槽,四邊配LED天花燈(筒燈)做補充照明,中間裝LED蠟燭球泡做的水晶吊燈。 2、樓梯和走道的天花裝COB的LED方形射燈。 3、主人房做一個造型的天花暗槽放T5-LED燈管,天花池外四周配LED天花燈(筒燈),中間裝LED蠟燭球泡做的吊燈。 4、書房裝LED筒燈做主要照明,中間裝明裝吸頂燈。 5、小孩房做一個簡單造型的天花暗槽放T5-LED燈管,四周配LED天花燈(筒燈),中間裝吸頂燈。 6、衛生間正中各裝LED吸頂廚衛燈。 7、露臺裝LED吸頂燈。 8、具體的布局請看設計圖。 |
燈光照明設計方案相關產品推薦 |








































































